Verkauf

Wohnungen und Villen zum Verkauf im Kanton Tessin

Lugano

Rif. 12255

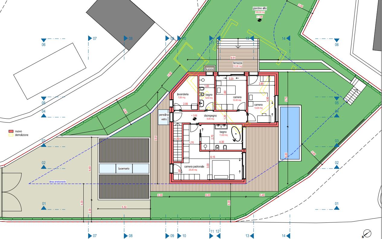
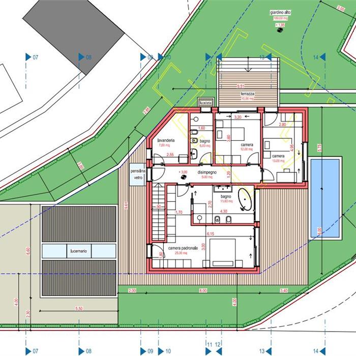
Building plot with approved licence – Lugano Sonvico In one of the most sought-after and peaceful areas of Lugano–Sonvico, we are offering for sale a building plot with an already approved building licence for the construction of a modern detached villa. Location Sonvico offers tranquillity, privacy, excellent exposure and quick connections to Lugano (10–12 minutes). Land data and urban planning indices Land area: 689 m² Zone: Semi-extensive residential (Re) Floor area ratio (FAR) Maximum FAR for the zone (0.5): 344.50 m² Approved project I.S. (0.26): 180.00 m² Occupancy index (I.O.) Maximum I.O. for the area (30%): 206.70 m² Project I.O. (21%): 148.00 m² Minimum green space Requirement: 43% Project: 296.00 m² (43%) Approved project The licence authorises the construction of a modern villa with spacious rooms, plenty of natural light and the possibility of customisation.
  • Type
  • Lokal
    4,50
  • Quadratmeterzahl
    MQ
  • Leistungen
    0
  • Parkplätze
    SI - 2 Box auto
  • CHF Parkplatz
    0 CAD
  • Preis
    1.050.000 CHF

Suche nach anderen Immobilien

CASLANO
Traumleben

Sun Lake City ist ein neuer und innovativer Wohnkomplex an den Ufern des Caslano. Ein von Grün umgebener, fast unberührter Landstreifen vor dem See ... eine Oase zwischen Wasser und Land.

Enter

Vacallo

Rif. 9468

  • Type
    Appartamento
  • Lokal
    3,50
  • Quadratmeterzahl
    90,00 MQ
  • Leistungen
    1
  • Parkplätze
    SI - 1 Esterni
  • Preis
    280.000 CHF

rovio

Rif. 9543

  • Type
    Casa
  • Lokal
    4,50
  • Quadratmeterzahl
    MQ
  • Leistungen
    2
  • Parkplätze
    SI - 1 Autorimessa 50.000 CAD, 1 Esterni 0 CAD
  • Preis
    1.200.000 CHF

Porto Torres

Rif. 3098

  • Type
    Villa
  • Lokal
    5,50
  • Quadratmeterzahl
    250,00 MQ
  • Leistungen
    1
  • Parkplätze
    SI - 1 Box auto 0 CAD, 1 Esterni 0 CAD
  • Preis
    2.200.000 CHF

Bleiben Sie auf dem Laufenden

LUGANO
Via P.Lucchini, 2
6900 Lugano – CH
T +41 (0) 91 922 93 33
F +41 (0) 91 922 93 34
info@sitimmobiliare.chh

Betriebszeiten:

Montags - Donnerstags
h 8.30 – h 18.30
durchgehend

Freitags
h 8.30 – h. 17.00
durchgehend

Samstags 
nach Terminvereinbarung.

LOCARNO
Via B. Luini 12
Stabile La Ferriera
6600 Locarno – CH
T+41 (0) 91 922 93 33
F +41 (0) 91 922 93 34
info@sitimmobiliare.ch

Betriebszeiten:

Montags - Donnerstags
h 8.30 – h 18.30
durchgehend

Freitags
h 8.30 – h. 17.00
durchgehend

Samstags
nach Terminvereinbarung.