Sale

Apartments and villas for sale in the canton of ticino

Cagiallo

Rif. 12236

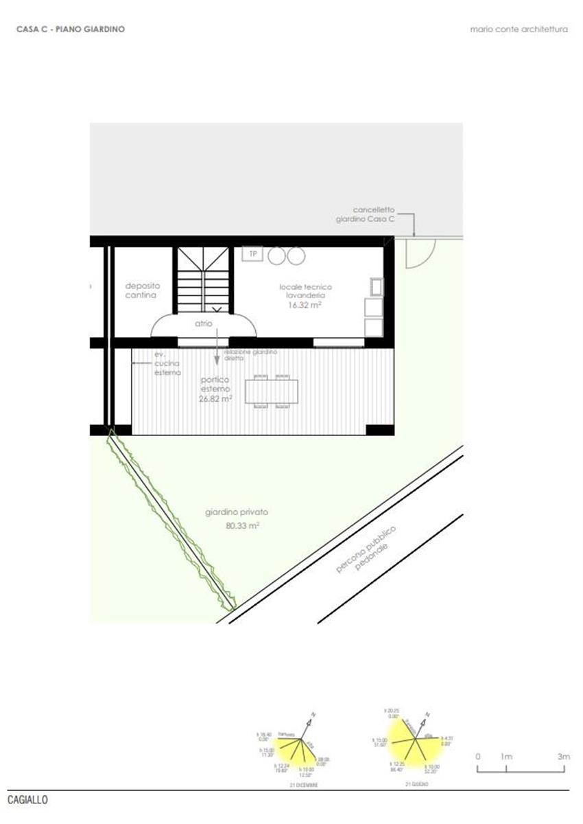
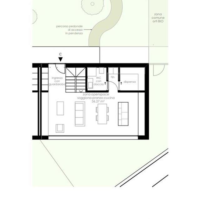
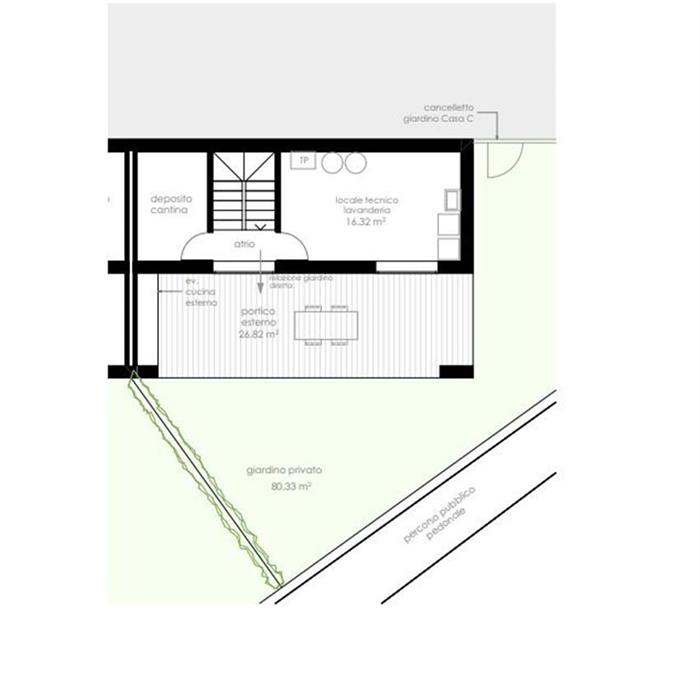
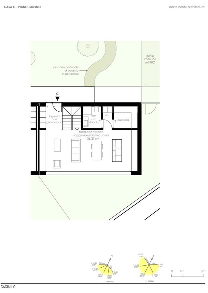
The land covered by the project is located above the historic centre of Cagiallo, now part of the municipality of Capriasca. The area is quiet, green and away from traffic, with an open view towards both the historic centre and the ‘Denti della Vecchia’ mountain range. The land also benefits from a convenient public footpath, accessible directly from the site, which connects the centre of Cagiallo to the valley. The project involves the construction of three new detached single-family homes, which are modern and enjoy excellent sunshine all year round thanks to the orientation designed by the architect. Each home has three levels: an open-plan living area with large windows facing the valley, a sleeping area with three bedrooms and two bathrooms, and a garden level with a covered porch, laundry room, utility room and cellar. Each unit has a private garden, independent pedestrian access and two parking spaces. On the upper level, there is a communal “organic vegetable garden” area for the three homes, while under the parking spaces there is a covered area with private cupboards and the external units of the heat pumps, completely hidden from view. The homes are designed with sustainability in mind: independent photovoltaic systems, separate air-water heat pumps for each home, insulated windows, motorised sunshades and underfloor heating in all living areas. House 2 is currently reserved, while the other two units are available. Floor area: Total area 300 m², of which 100 m² is compulsory share 1/3 in joint ownership with the other 2 houses. Living area 140 m² + 30 m² for technical rooms.
  • Type
    Casa
  • Local
    4,50
  • Square footage
    170,00 MQ
  • Services
    1
  • Parking spaces
    SI - 2 Esterni
  • CHF Parking space
    0 CAD
  • Price
    1.047.000 CHF

Search for other properties

CASLANO
Dream living

Sun Lake City is a new and innovative residential complex on the banks of Caslano. A strip of land surrounded by greenery in front of the lake, almost uncontaminated ... an oasis between water and earth.

Enter

Vacallo

Rif. 9468

  • Type
    Appartamento
  • Local
    3,50
  • Square footage
    90,00 MQ
  • Services
    1
  • Parking spaces
    SI - 1 Esterni
  • Price
    280.000 CHF

rovio

Rif. 9543

  • Type
    Casa
  • Local
    4,50
  • Square footage
    MQ
  • Services
    2
  • Parking spaces
    SI - 1 Autorimessa 50.000 CAD, 1 Esterni 0 CAD
  • Price
    1.200.000 CHF

Porto Torres

Rif. 3098

  • Type
    Villa
  • Local
    5,50
  • Square footage
    250,00 MQ
  • Services
    1
  • Parking spaces
    SI - 1 Box auto 0 CAD, 1 Esterni 0 CAD
  • Price
    2.200.000 CHF

Stay up to date

LUGANO
Via P.Lucchini, 2
6900 Lugano – CH
T +41 (0) 91 922 93 33
F +41 (0) 91 922 93 34
info@sitimmobiliare.ch

Opening hours:

Monday - Thursday
h. 8.30 – h. 18.30
non stop

Friday
h. 8.30 – h. 17.00
non stop

Saturday
by appointment.

LOCARNO
Via B. Luini 12
Stabile La Ferriera
6600 Locarno – CH
T+41 (0) 91 922 93 33
F +41 (0) 91 922 93 34
info@sitimmobiliare.ch

Opening hours:

Monday - Thursday
h. 8.30 – h. 18.30
non stop

Friday
h. 8.30 – h. 17.00
non stop

Saturday
by appointment.