Vendita

Appartamenti e ville in vendita in canton ticino

Chiasso

Rif. 12271

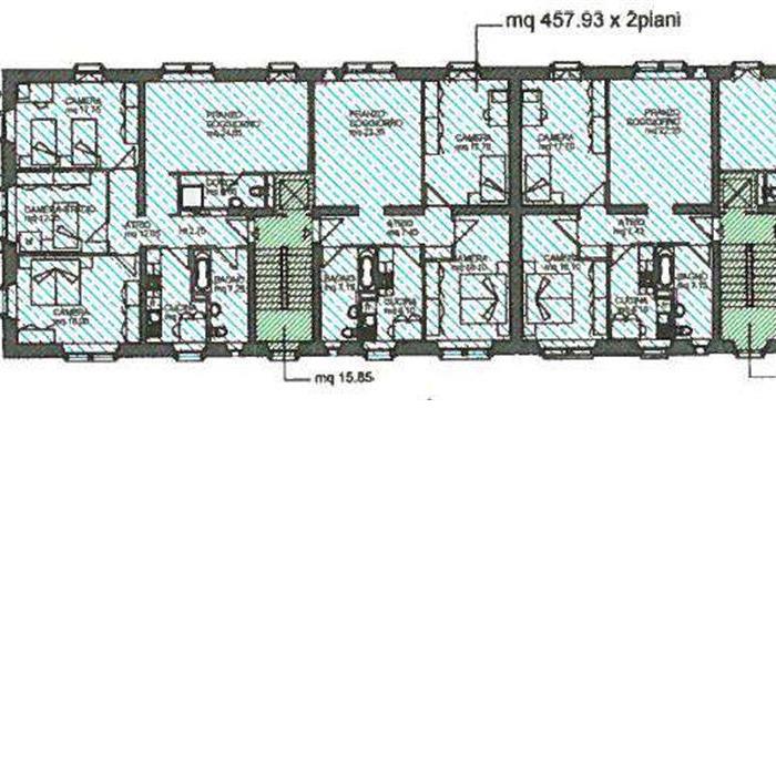
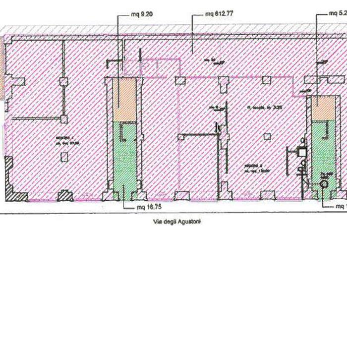
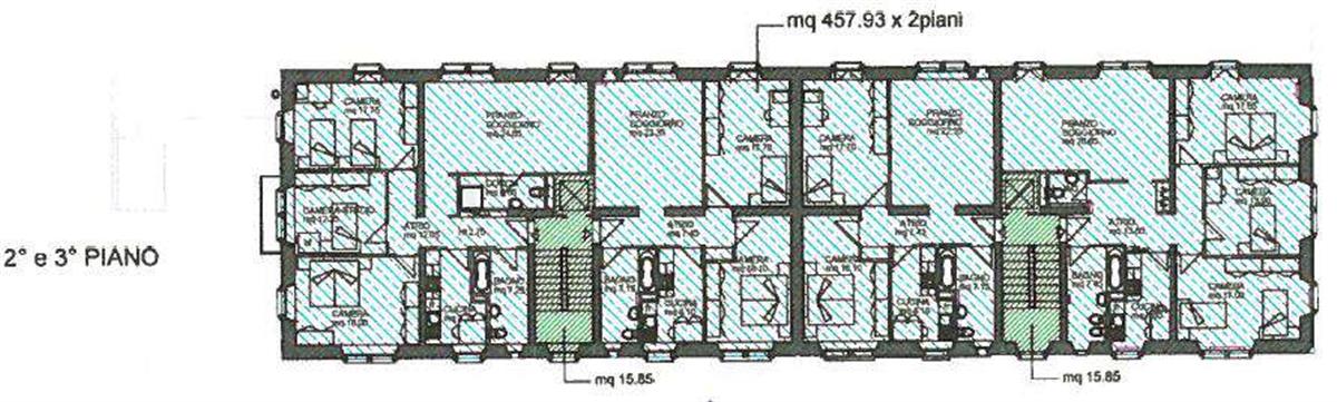
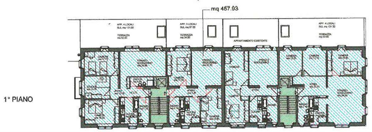
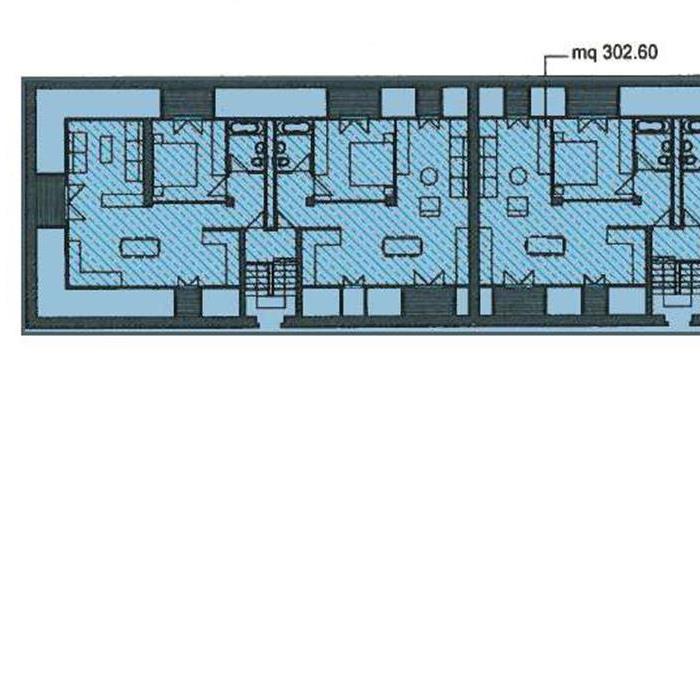
Stabile a reddito nel cuore di Chiasso, composto da 19 unità tra residenziale e commerciale, situato in posizione strategica a pochi passi dalla stazione, dal confine italiano e da tutti i principali servizi. La proprietà coniuga stabilità di reddito immediata e importante potenziale di valorizzazione, grazie a unità sottoutilizzate, canoni inferiori al mercato e possibilità di riconversione interna. Dati generali • Tipologia: stabile a reddito residenziale + commerciale • Unità totali: 19 - 14 appartamenti - 5 unità commerciali / magazzini - 3 posti auto esterni • Ristrutturazione principale: 1992 (ristrutturazione completa) • Ulteriori interventi: estate 2024 (facciata, balconi, tetto, 4 appartamenti rinnovati) Superfici • Superficie del fondo: 781 m² • Superficie locabile: 1’877 m² • Distribuzione su 4 piani Stato giuridico e tecnico Zona: zona nucleo Vincoli • NON soggetto a vincolo storico • Nessuna iscrizione a catasto siti inquinati Stato manutentivo: buono stato generale, nessun intervento urgente previsto Struttura: muratura mista (calcestruzzo e pietra) Riscaldamento: olio, impianto in ottimo stato Finestre: legno doppio vetro (in parte PVC triplo vetro) Redditività Situazione attuale (IST) • Ricavi annui: CHF 211’440.– • Rendita IST: 4.32 % • 3 unità attualmente sfitte Situazione a piena locazione (SOLL attuale) • Ricavi annui: CHF 261’240.– • Rendita attesa: 5.33 % Scenario di valorizzazione (con investimento) • Investimento stimato: CHF 460’000.– N.B. Conversione grande unità (ex ufficio 8 locali) in ca. 4 appartamenti • Ricavi potenziali: CHF 290’400.– / anno • Rendita attesa: 5.42 % Proiezione finanziaria (leva bancaria) • Equity stimato: 30 % • Rendimento sul capitale proprio: ˜ 8 % • Cash flow positivo anche dopo ammortamenti e interessi
  • Tipologia
  • Locali
    19,00
  • Metratura
    1877,00 MQ
  • Servizi
    0
  • Posti auto
    SI - 3 Esterni
  • CHF Posto auto
    0 CAD
  • Prezzo
    4.900.000 CHF

Cerca altri immobili

RESIDENZA CONCORDIA
Ultime unità disponibili

A Cassarate, in un contesto residenziale a solo 1 km dal centro di Lugano. La palazzina sorge su una strada secondaria con medio impatto fonico e la zona inoltre è comoda per raggiungere scuole e negozi che si trovano a Lugano.

Chiedi info

Vacallo

Rif. 9468

  • Tipologia
    Appartamento
  • Locali
    3,50
  • Metratura
    90,00 MQ
  • Servizi
    1
  • Posti auto
    SI - 1 Esterni
  • Prezzo
    280.000 CHF

rovio

Rif. 9543

  • Tipologia
    Casa
  • Locali
    4,50
  • Metratura
    MQ
  • Servizi
    2
  • Posti auto
    SI - 1 Autorimessa 50.000 CAD, 1 Esterni 0 CAD
  • Prezzo
    1.200.000 CHF

Porto Torres

Rif. 3098

  • Tipologia
    Villa
  • Locali
    5,50
  • Metratura
    250,00 MQ
  • Servizi
    1
  • Posti auto
    SI - 1 Box auto 0 CAD, 1 Esterni 0 CAD
  • Prezzo
    2.200.000 CHF

Resta aggiornato

LUGANO
Via P.Lucchini, 2
6900 Lugano – CH
T +41 (0) 91 922 93 33
F +41 (0) 91 922 93 34
info@sitimmobiliare.ch

Orari di apertura:
Lunedi – Giovedì
h 8.30 – h 18.30
orario continuato
Venerdì
h 8.30 – h. 17.00
orario continuato
Sabato su appuntamento.

LOCARNO
Via B. Luini 12
Stabile La Ferriera
6600 Locarno – CH
T +41 (0) 91 922 93 33
F +41 (0) 91 922 93 34
info@sitimmobiliare.ch

Orari di apertura:
Lunedi – Giovedì
h 8.30 – h 18.30
orario continuato
Venerdì
h 8.30 – h. 17.00
orario continuato
Sabato su appuntamento.